一、工程简介
本工程为学院建筑工程系教室改电脑机房装修工程,在原地板砖楼面上安装静电地板,根据电脑机房平面布置图进行强、弱电安装,对机房进行吊顶、窗帘安装及墙面涂刷等装修;具体工程量按实际发生量结算。为确保工程施工的顺利开展,并根据学院维修工程管理规定学院通过邀标的形式来择优确定施工队伍(区政府采购中心已经确定的2019年至2020年年度入选施工单位)。
二、质量要求:
达到现行国家及政府有关部门建筑装饰工程施工验收合格标准。
三、承包方式: 包工包料。
四、施工工期: 2020年1月15日前完工。
五、建设地点:
南宁市兴宁区昆仑大道1258号,PP电子游戏网站昆仑校区内。
六、投标费用
1、投标保证金:本工程招标不收取投标保证金。
2、评标过程中一切费用由学院承担。
3、投标人对其编制投标文件与递交投标文件所涉及的一切费用自行承担,不管投标结果如何,招标人对上述费用不负任何责任。
七、投标价格:
本次工程招标控制价为:230,549.96元。
投标总报价应在招标控制价乘以入围广西壮族自治区财政厅关于2019-2020年度自治区本级预算单位限额内工程施工单位定点采购的通知中施工单位目录承诺优惠百分比以下,否则按废标处理。投标人在报价汇总表中所填报的单价在合同实施期间不因市场变化因素而变动,投标人在计算报价时应考虑一定的风险因素和固定价格包括的范围。报价汇总表中的价格就包括施工设备使用、劳务、管理、材料、安装、维护、保险,利润、税金、政策性文件规定、合同规定和包含的所有风险、责任等费用。
八、投标文件的编制内容
1、投标文件及投标单位与招标单位间的有关来往文书均使用汉语。
2、本工程只做商务标不做技术标,组成投书的文件:
(1)分部分项工程量清单与计价表包括单价及总价;
(2)法定代表人证明书或委托代理人授权书及营业执照复印件;
(3)其他所需要说明的资料;
(4)标书中的文字不得涂改、如有涂改需在涂改的处加盖法人章;
(5)格式按我院发出报价汇总。
九、标书的装封、标志与递交
1、本工程要求为投标书正副两份密封在投标文件袋中。
2、文件袋封口需用密封条予以贴紧并加盖投标单位公章。
3、投标书于2019年12月12日上午9点至10点递交到学院昆仑校区管理楼招标中心办公室(202室),逾期不递交单位做自动放弃投标处理。
十、评标
1、开标地点:PP电子游戏网站昆仑校区管理楼招标中心办公室(202室)。
2、开标时间: 2019年12月12日上午11点。
3、评标方式:采用公开式进行,投标总价应低于招标控制价乘以入围区政府采购施工单位目录承诺优惠百分比入围进入评标程序。投标价采用价格平均值计算方法,确定评标基准价。为防止围标人为抬高均价或压低均价,投标评标价在7个至9个时,去除一个最高价和一个最低价;投标评标价在10个以上时,去除一个最高价、一个次高价和一个最低价、一个次低价。评标基准价=所有有效投标人报价平均值,投标人报价与评标基准价绝对差值小者中标。采用公开式进行,由PP电子游戏网站采购招标小组进行综合评标。
十一、合同协议的签署:
1、中标人收到中标通知书后,按中标通知书中规定的时间、地点与我院签订合同。
2、如中标人不按中标通知书的规定履约,则按违约处理。
3、如遇中标人违约,我院有权从中标候选人中确定中标人,并组织中标人与我院签订合同或重新组织招议标。
十二、联系电话及通讯地址
地址:南宁市PP电子游戏网站昆仑校区管理楼招标中心办公室。
联系人:李老师 联系电话:0771-5650355
本工程招标书解释权为我院采购招标小组。
附件一、昆仑校区副楼602、604新机房装修工程招标工程量清单;
附件二、昆仑校区副楼602或604电脑机房平面布置图。
PP电子游戏网站
2019年12月8日

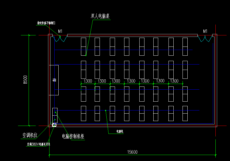
昆仑校区副楼602或604电脑机房平面布置图
昆仑校区副楼602、604新机房装修工程招标工程量清单